


通讯地址:山东聊城经济开发区华山路南首30号
固定电话:0635-8888299
传真号码:0635-8888109
移动电话:13287501888
联系人:陈经理
电子邮箱:1262980066@qq.com

供应佛山SCB10型干式变压器
佛山SCB10干式电力变压器
|
概 述 华盈集团生产的SC(B)10/11系列环氧浇注干式变压器是用带填料的F级环氧树脂混合料,经真空薄膜脱气后,在真空和压力 下,薄层浇注内外表面放在玻璃丝成型网增强的高低压线圈,呈一种机械强度、电气强度、耐热程度很高的干式变 压器。是城市电网改造的优秀产品,特别适用于佛山城市电网、佛山高层建筑、商务中心、剧院、宾馆、隧道、地 铁、地下电站、实验室、车站、码头、机场、佛山组合变电站等要求阻燃、防爆、防潮的重要场所。 |
型号及其含义:
产品正常使用环境
海拔高度:≤1000m; 环境温度:
最高温度:40℃;
最低温度:-25℃(佛山户外干式变压器); 最低温度:-5℃(户内干式变压器); 最高月平均温度:30℃; 最高年平均温度:20℃;
周围空气相对湿度应低于93%,线圈表面不应出现水滴; 三相变压器的三相电源电压应近似对称;
电源电压波形应近似于正弦波。
国家标准:
GB1094.1 《佛山电力变压器 第1部分:总则》
GB1094.11 《电力变压器 第11部分:干式电力变压器》
GB/T10228 《干式电力变压器技术参数和要求》
GB311.1 《高压输变电设备的绝缘配合》
GB/T311.2 《绝缘配合 第2部分:高压输变电设备的绝缘配合使用导则》
GB/T311.6 《高电压试验技术 第5部分:测量球隙》
GB50150 《电气装置安装工程 电气设备交接试验标准》
GB/T5273 《变压器、高压电器和套管的接线端子》
GB/T17211 《佛山干式电力变压器负载导则》
GB/T191 《包装储运图示标志》
GB/T2900.15 《电工术语 变压器 互感器 调压器和电抗器》
JB/T10088 《6kV~500kV级电力变压器声级》

产品特点:
• 抗短路能力强、损耗低、空载电流小、耐冲击力强、局部放电量低、噪声小,散热能力强。
• 华盈集团生产的产品性能参数均优于GB和IEC标准。
• 安全、难燃、防火、无污染,可直接安装在负荷中心。
• 免维护、安装便捷、综合运行成本低。
• 可靠性高、机械强度高。
• 抗震能力强。
• 防潮、抗腐蚀。
• 过载能力强,在无风冷的情况下可以120%负荷长期运行。
• 适用于:佛山人口密集,场所狭窄的市区变电站。
产品参数:
10kV系列

型号
电压组合
联结组标号
空载 损耗 (W)
负载 损耗 (W)
重 量(kg)
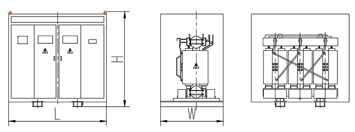
本体尺寸 (mm) L*W*H
外壳尺寸
带外壳 总重(kg)
阻抗电压(%)
高压
低压
SC10-30
6,6.3,
0.4
Dyn11
Yyn0
190
710
250
680*450*640
1080*850*1020
400
4
SC10-50
270
1000
300
700*450*640
1100*850*1040
450
SC10-80
370
1380
430
860*450*760
1260*850*1150
600
SC10-100
400
1570
630
920*780*900
1500*1300*2200
830
SC10-125
470
1850
700
920*780*950
1500*1300*2200
900
SC10-160
540
2130
800
920*780*1000
1500*1300*2200
1000
SC10-200
620
2530
950
1100*780*960
1800*1300*2200
1150
SC10-250
720
2760
1100
1100*650*1150
1800*1300*2200
1300
SC10-315
880
3470
1300
1100*940*1150
1800*1300*2200
1500
SC(B)10-400
980
3990
1500
1100*940*1200
1800*1300*2200
1800
SC(B)10-500
1160
4880
2000
1350*940*1200
2000*1500*2200
2250
SC(B)10-630
1340
5880
2050
1350*940*1300
2300*1500*2200
2300
SC(B)10-630
1300
5960
2050
1400*940*1130
2300*1500*2200
2300
6
SC(B)10-800
1520
6960
2350
1450*940*1140
2300*1500*2200
2600
SC(B)10-1000
1770
8130
2750
1500*940*1250
2300*1500*2200
3000
SC(B)10-1250
2090
9690
3100
1500*940*1300
2300*1800*2200
3300
SC(B)10-1600
2450
11730
3600
1550*940*1410
2300*1500*2200
4000
SC(B)10-2000
3050
14450
4600
1650*1190*1780
2400*1600*2200
5000
SC(B)10-2500
3600
17170
5500
1720*1190*1800
2500*1600*2200
6000
(kV)
(mm)L*W*H
H.V.
L.V.
10,
10.5,11
Copyright © 2025 佛山非晶合金变压器_佛山干式变压器_华盈非晶合金变压器有限公司 鲁ICP备16029283号-3 技术支持:互联纵横